収納
適所に効率よく収納を設けて、
家の中も気分もすっきり。
家族が増えたり、子どもが成長するうちに、足りなくなりがちな収納。整理整頓や不要なものを処分しても解決しない場合には、間取りから見直して収納を確保するのもひとつの方法です。ただスペースを大きく広げるだけでなく、生活動線やライフスタイルに合わせて検討することが大切です。
- 工期の目安:3~5日
- ご予算目安:50万円~
- こんなときに!CHECK POINT
- 部屋が片付かない
- 物が多い
- 収納家具を増やすと部屋が狭くなる
- ほしい場所に収納がない
お客さまの声01
収納が魅力に!完工前に
入居者が決まりました!
Before
Report
食堂だった場所を賃貸住宅にリフォーム。スペースを上手に活用して、使いやすい間取りを考えました。もともと自動販売機が置かれていたスペースはウォークインクローゼットに。両側の枕棚とハンガーパイプに加えて、奥の壁にも稼働棚を設置。収納としてはもちろん、お気に入りのファッション小物を飾るのにもぴったりです。
Data
- 築年数
- 25年
- 面積
- 60㎡
- 間取り
- 旧食堂 → 1DK+S(納戸)
- 参考金額
- 50万円
- 工期
- 3日
- エリア
- 広島市
Before

After

新規収納スペース
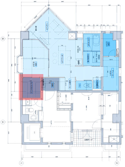
お客さまの声02
靴もお洋服もたっぷり収まる!
大容量収納を実現。
Report
玄関近くの洋室をシューズインクロークとウォークインクローゼットに変更。マンションに不足しがちな収納力をぐっとアップしました。自由に収納できる大容量の稼働棚とアクセントカラーの壁紙を組み合わせ、機能性とデザイン性を両立しました。
Data
- 築年数
- 34年
- 面積
- 100㎡
- 間取り
- 4LDK
- 工期
- 4日
- エリア
- 高松市
Before

After

新規収納スペース
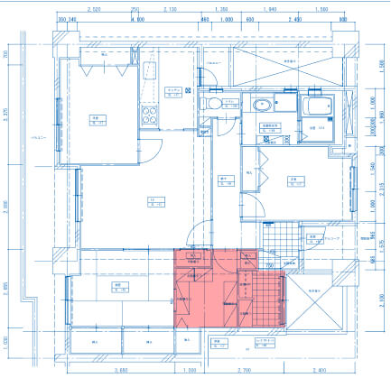
お客さまの声03
和室が、娘さん用の
WIC付きのお部屋に!
Before
Report
5畳の和室を居室にリフォームし、ウォークインクローゼットを設置。限られた空間を最大限に活用して、収納量を大幅に確保しました。照明器具と壁紙・ブラインドの色で空間が明るくなるよう工夫しました。
Data
- 築年数
- 16年
- 面積
- 67㎡ (収納2.5畳、フローリング3畳)
- 間取り
- 3LDK
- 参考金額
- 97万円
- 工期
- 1週間
- エリア
- 岡山市
- イメージ
- エレガント・フェミニン
Before

After

新規収納スペース


























