ワークスペース対応
スペースを見直して、
在宅ワークの効率アップ!
リモート会議やデスク作業……住まいの中に、落ち着いて仕事に取り組める場所はありますか。個室をつくるだけでなく、仕切りを設けて半個室にしたり、デッドスペースを活用して部屋の一角をアレンジしたり、工夫次第で快適なワークスペースを設けることができます。家族の生活スタイルやワークスタイルに合わせて検討しましょう。
- 工期の目安:3~5日
- ご予算目安:30万円~
- こんなときに!CHECK POINT
- 仕事に集中したい
- 自宅だと仕事の効率が落ちる
- オン・オフを切り替えたい
- 小さな子どもがいる・家族が多い
お客さまの声01
自宅で過ごす時間が豊かになり、
気持ちにゆとりができました。
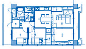
Before
キッチンと和室の一部の壁を撤去し、リビングとつながる半個室の書斎を新設。天井まで届く壁面収納で、たくさんの書籍や書類も収まる大容量。壁には、自然素材を好まれるお客さまのご希望により珪藻土を採用。

Before
クローゼットの扉を撤去し、オープン棚とカウンターをあつらえてワークスペースに。
Report
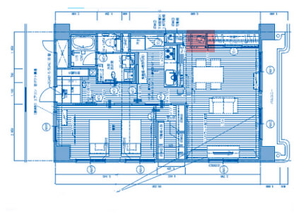
LDKと洋室にワークスペースを新しく設けました。半個室の書斎は、リビングで過ごす家族の気配を感じながら作業することができます。洋室は全体的に落ち着いた雰囲気にするため、家具はダークトーンの木目をセレクト。最小限のダウンライトと間接照明を設置し、床はあえてカーペット仕様に。ホテルライクな空間に仕上がりました。
Data
- 築年数
- 25年
- 面積
- 85㎡
- 間取り
- 3LDK
- 仕様
- タモ集成材造作家具、珪藻土塗
- 工期
- 10日
- エリア
- 香川県
- イメージ
- ナチュラルモダン
Before

After

新規ワークスペース
プランナーの声02
空間を有効利用して、
ダイニングの一角をアレンジ。
Report
ダイニングの一角にカウンターデスクを造作。椅子はあえて置かず、後ろのダイニングチェアを併用して空間をすっきりさせました。デスク横には作り付けの収納棚を設置。棚のサイズはお手持ちのプリンターがぴったり収まる横幅と奥行きで、棚板は高さを変えられる可動式。空間を無駄なく活用した実用的なワークスペースです。
Data
- 築年数
- 38年
- 面積
- 67㎡
- 間取り
- 4DK→1LDK
- 参考価格
- 35万円(税抜)
- 工期
- 3日
- イメージ
- ナチュラル・スタイリッシュ
Before

After

新規ワークスペース


























